聯係電話:
0523-8733 8088
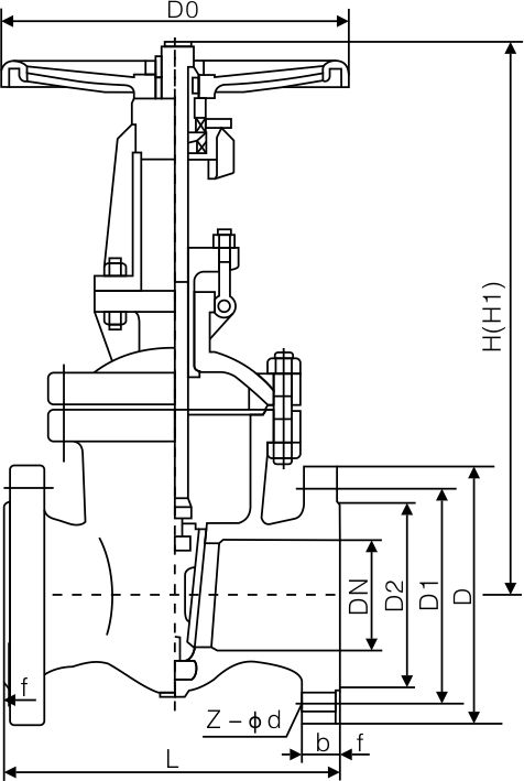
產品(pǐn)詳情
國標楔式閘閥適用於公稱壓力PN1.6~6.4MPa,工作溫度-29℃~550℃的石(shí)油、化(huà)工、水力(lì)、火力電站各種係統的管路上,切斷或接通(tōng)管路介質。適用介(jiè)質為:水、油品、蒸氣、及酸、堿、氨、尿素、含硫天然氣等(děng)。
◆結構緊湊、設計合理、閥門剛性好、通道流暢、流阻係數小;
◆密(mì)封麵采用不鏽(xiù)鋼和硬(yìng)質合金,使用壽命長;
◆采用柔性石墨填料、密封可靠、操作輕便靈(líng)活;
◆驅動方式(shì)為手動、氣動、電動、齒輪傳動、液動;
◆結構形式為彈性楔式單閘板、剛性(xìng)楔式單(dān)閘板雙閘板型式。






